|
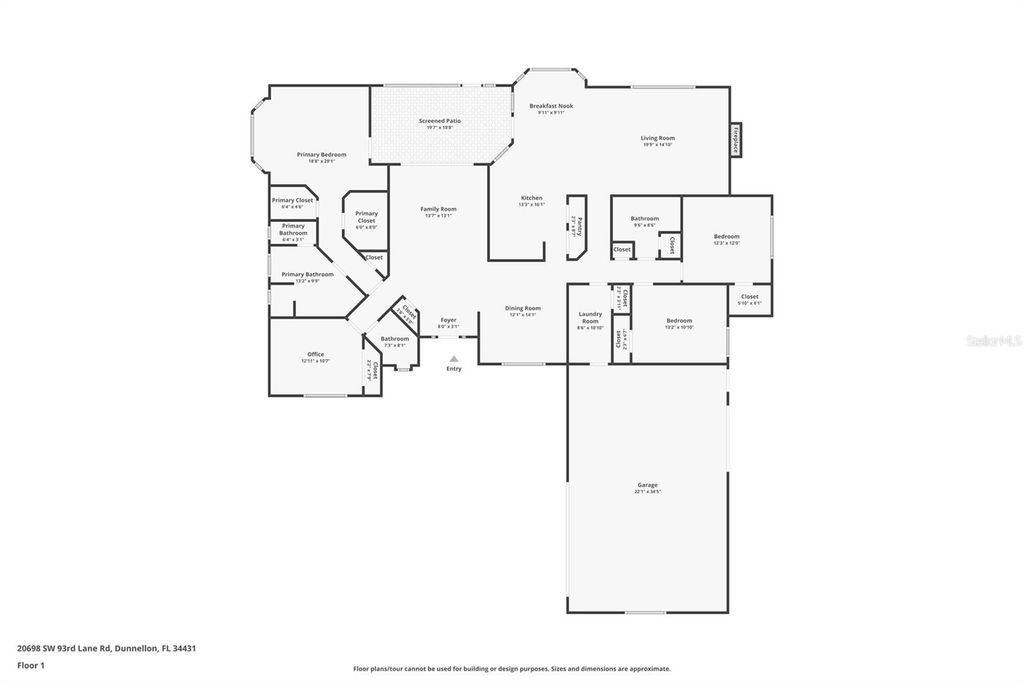
Immaculately maintained home in the heart of Rainbow Springs! This charming 3 bedroom, 2.5 bath home is beautifully situated on a just over 1 acre CORNER lot. The circular drive gives ample parking and convenient ingress and egress. Inside, the high ceilings and tall windows give tons of light. The oversized kitchen was just RENOVATED in 2025 with all new QUARTZ counters and stainless steel appliances. There's tons of counter space and lots of cabinets as well. The Owner's Suite is cozy, yet large and has access to the screened in lanai area. The Owner's bath has large tub and walk in shower as well as a water closet. There is also a bedroom/office just across that is perfect for those who WORK FROM HOME. There is also a 1/2 bath that could be used by guests right next to the office. The kitchen opens up to the family room which has a lovely brick wood burning fireplace. The ROOF was replaced in 2016 and the AC is 2014. Outside, the screened in lanai is large and overlooks the beautiful backyard. There is even a fenced in dog run. A 10'x12' shed out back is great for extra storage or for lawn equipment. And for those dry seasons, there is a 7 zone irrigation system. The oversized 3 car garage has plenty of space for vehicles and a workshop. The 3rd door is on the back of the freshly painted garage and could be for a car or for a golf cart. There is a 30 AMP RV hookup and a drain for the sewer on the garage side of the home. The $250 a year HOA fee includes access to the club house and a PRIVATE BEACH on the historic RAINBOW RIVER with a picnic pavilion! Come check out this slice of heaven today!
| DAYS ON MARKET | 66 | LAST UPDATED | 1/29/2026 |
|---|---|---|---|
| TRACT | RAINBOW SPGS 04 REP | YEAR BUILT | 1996 |
| COMMUNITY | 34431 - Dunnellon | GARAGE SPACES | 3.0 |
| COUNTY | Marion | STATUS | Active |
| PROPERTY TYPE(S) | Single Family |
| ADDITIONAL DETAILS | |
| AIR | Central Air |
|---|---|
| AIR CONDITIONING | Yes |
| APPLIANCES | Dishwasher, Electric Water Heater, Microwave, Range, Refrigerator |
| AREA | 34431 - Dunnellon |
| CONSTRUCTION | Brick, Frame, HardiPlank Type, Stucco |
| EXTERIOR | Dog Run, Lighting |
| FIREPLACE | Yes |
| GARAGE | Yes |
| HEAT | Central, Electric, Heat Pump |
| HOA DUES | 250 |
| INTERIOR | Built-in Features, Eat-in Kitchen, High Ceilings, Walk-In Closet(s) |
| LOT | 1.09 acre(s) |
| LOT DESCRIPTION | Corner Lot |
| LOT DIMENSIONS | 173x274 |
| PARKING | Attached |
| SEWER | Septic Tank |
| STORIES | 1 |
| STYLE | Craftsman |
| SUBDIVISION | RAINBOW SPGS 04 REP |
| TAXES | 2815.63 |
| UTILITIES | Cable Available, Electricity Connected |
| VIEW | Yes |
| VIEW DESCRIPTION | Trees/Woods |
| WATER | Private, Well |
MORTGAGE CALCULATOR
TOTAL MONTHLY PAYMENT
0
P
I
*Estimate only
| SATELLITE VIEW |
| / | |
We respect your online privacy and will never spam you. By submitting this form with your telephone number
you are consenting for Greg
Lord to contact you even if your name is on a Federal or State
"Do not call List".
Listing provided by Scott Coldwell, COLDWELL REALTY SOLD GUARANTEE, 352-209-0000
The information contained herein has been provided by My Florida Regional MLS DBA Stellar MLS. IDX information is provided exclusively for consumers' personal, non-commercial use, that it may not be used for any purpose other than to identify prospective properties consumers may be interested in purchasing, and that the data is deemed reliable but is not guaranteed accurate by the MLS. Listings last updated 4/3/26 7:12 PM PDT.
This IDX solution is (c) Diverse Solutions 2026.