|
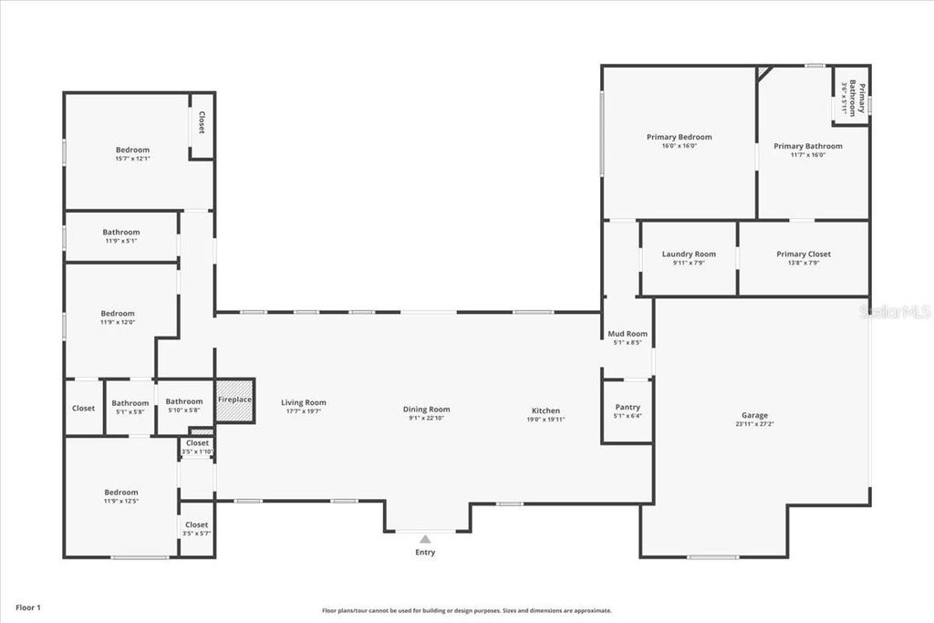
Welcome to this exceptional custom-built block home set on 5.12 acres in the gated community of Sumter Crossing. Completed in 2023 and offering 3,088 sq ft of living space, this residence blends quality construction, modern efficiency, and thoughtful custom design"”perfect for buyers seeking privacy, acreage, and refined living. Inside, the home features 10 ft ceilings, 8 ft doors, LVP flooring, custom cabinetry, and an open layout centered around a beautiful brick wood-burning fireplace with a gas starter. The chef's kitchen includes quartz countertops, a 48-inch gas range, large island, wine bar, custom cabinetry, and a walk-in pantry with integrated coffee bar. The primary suite offers a custom-designed walk-in closet with exceptional organization. Outdoor living is enhanced by a full summer kitchen on the covered back porch, finished with brick pavers that complement the home's design. The front porch also features its own brick paver finish, creating a welcoming entry. The property is fully fenced (2023) and allows pets including equine and bovine, offering flexibility for recreation, livestock, or creating a private retreat. Designed for high efficiency and long-term performance, the home features Icynene spray-foam insulation throughout the attic, block construction with injected foam insulation on the front elevation, dual gas tankless water heaters, and a Generac 24-KW whole-home generator supported by a 1,000-gallon buried propane tank near the garage and well. Together, these features contribute to a remarkably low electric bill and superior year-round comfort. The home also includes a salt-filtration water softener system and operates on well and septic for added independence. The oversized 2.5-car garage offers epoxy flooring and is pre-wired for two EV charging ports, one on each side. Above the garage is a dedicated mechanical room that keeps major systems accessible without occupying attic space. A second attic access is located on the opposite end of the house. The electrical panel includes an extra 100-amp junction box, ideal for adding a barn, workshop, or future guest house. Additional upgrades include a custom mudroom bench, custom cabinets in the kitchen and baths, custom built-in bookshelves, smart-home systems (doorbell, thermostats, locks, garage controls, smoke and carbon monoxide detectors), and an AC system with 3 zones and a 5-ton unit. This extraordinary property combines acreage, luxury finishes, modern efficiency, and endless lifestyle possibilities"”all within a peaceful gated setting. A rare opportunity to own a refined, move-in-ready estate crafted with exceptional detail. (Up to 2% of the loan amount available as a credit to the buyer toward closing costs, pre-paids, or rate buy-down when using preferred lender. Buyer may choose any lender of their preference.)
| DAYS ON MARKET | 123 | LAST UPDATED | 12/2/2025 |
|---|---|---|---|
| TRACT | SUMTER XING | YEAR BUILT | 2023 |
| COMMUNITY | 34484 - Oxford | GARAGE SPACES | 2.0 |
| COUNTY | Sumter | STATUS | Active |
| PROPERTY TYPE(S) | Single Family |
| ADDITIONAL DETAILS | |
| AIR | Central Air |
|---|---|
| AIR CONDITIONING | Yes |
| APPLIANCES | Cooktop, Dishwasher, Disposal, Dryer, Microwave, Range, Refrigerator, Tankless Water Heater, Washer, Wine Refrigerator |
| AREA | 34484 - Oxford |
| CONSTRUCTION | Block |
| EXTERIOR | Outdoor Kitchen, Private Entrance |
| FIREPLACE | Yes |
| GARAGE | Yes |
| HEAT | Central, Electric |
| HOA DUES | 1100 |
| INTERIOR | Built-in Features, Cathedral Ceiling(s), Eat-in Kitchen, High Ceilings, Open Floorplan, Smart Home, Vaulted Ceiling(s), Walk-In Closet(s) |
| LOT | 5.12 acre(s) |
| LOT DESCRIPTION | Farm, Landscaped, Pasture |
| PARKING | Circular Driveway, Driveway, Garage Door Opener, Garage Faces Side, Golf Cart Garage, Attached |
| SEWER | Septic Tank |
| STORIES | 1 |
| SUBDIVISION | SUMTER XING |
| TAXES | 5161.28 |
| UTILITIES | Cable Available, Cable Connected, Electricity Connected, Water Connected |
| WATER | Private, Well |
MORTGAGE CALCULATOR
TOTAL MONTHLY PAYMENT
0
P
I
*Estimate only
| SATELLITE VIEW |
| / | |
We respect your online privacy and will never spam you. By submitting this form with your telephone number
you are consenting for Greg
Lord to contact you even if your name is on a Federal or State
"Do not call List".
Listing provided by Lina Piedrahita, PROFESSIONAL REALTY OF OCALA, 352-426-0379
The information contained herein has been provided by My Florida Regional MLS DBA Stellar MLS. IDX information is provided exclusively for consumers' personal, non-commercial use, that it may not be used for any purpose other than to identify prospective properties consumers may be interested in purchasing, and that the data is deemed reliable but is not guaranteed accurate by the MLS. Listings last updated 4/3/26 9:00 PM PDT.
This IDX solution is (c) Diverse Solutions 2026.