|
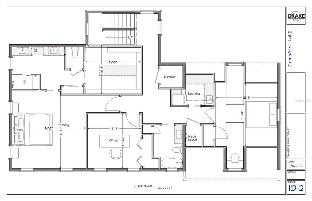
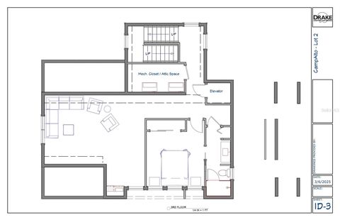
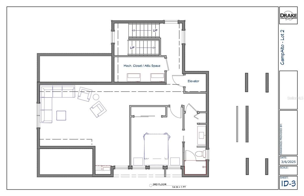
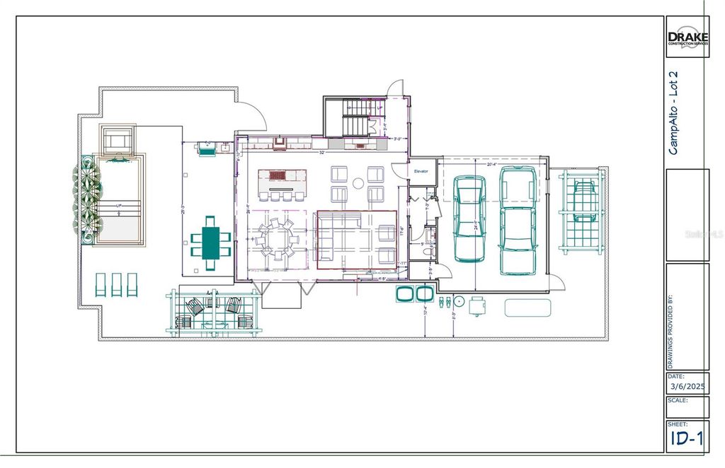
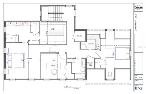
Under contract-accepting backup offers. One or more photo(s) has been virtually staged. Under Construction. Last Opportunity in Camp Alto - Custom Luxury Meets Historic Charm This is the final chance to own one of just four custom homes in Camp Alto, a private, gated enclave located in Ocala's sought-after SE Historic District. Currently under construction by Drake Construction Services, this 3,600 sq. ft. home features 4 bedrooms, 3.5 baths, and a stunning blend of timeless character and modern elegance"”just minutes from Downtown Ocala. Thoughtfully designed to honor the surrounding historic architecture, this residence has been fully approved by the Ocala Historic Preservation Advisory Board (OHPAB). Inside, expansive living spaces open to two private courtyards"”perfectly planned for an optional (not included) cocktail pool and outdoor kitchen. Natural light pours through large glass openings in the Great Room, while garden walls provide a peaceful, private retreat. Highlights include: -Fully Custom Interiors: Over $200,000 in allowances included for personalized finishes. A selections coordinator will guide the process to match your style. -Quick Completion: Home will be finished within 4 months of your interior selections. - Elevator Included for added convenience. - Low-Maintenance Living: HOA handles all landscaping and hardscaping beyond the courtyards. Don't miss this rare opportunity to own a brand-new, custom home in the heart of Ocala's Historic District. *Photos shown are of a finished model (sold) "”buyers will personalize this one from the ground up!
| DAYS ON MARKET | 394 | LAST UPDATED | 9/15/2025 |
|---|---|---|---|
| TRACT | CAMPALTO | YEAR BUILT | 2025 |
| COMMUNITY | 34471 - Ocala | GARAGE SPACES | 2.0 |
| COUNTY | Marion | STATUS | Pending |
| PROPERTY TYPE(S) | Single Family |
| Elementary School | Eighth Street Elem. School |
|---|---|
| Jr. High School | Osceola Middle School |
| High School | Forest High School |
| PRICE HISTORY | |
| Prior to Aug 29, '25 | $1,449,000 |
|---|---|
| Aug 29, '25 - Today | $1,397,000 |
| ADDITIONAL DETAILS | |
| AIR | Central Air |
|---|---|
| AIR CONDITIONING | Yes |
| APPLIANCES | Bar Fridge, Dishwasher, Disposal, Gas Water Heater, Microwave, Range Hood, Refrigerator |
| AREA | 34471 - Ocala |
| CONSTRUCTION | Cement Siding, Concrete, Stone, Stucco |
| EXTERIOR | Lighting |
| GARAGE | Yes |
| HEAT | Heat Pump |
| HOA DUES | 200 |
| INTERIOR | Built-in Features, Elevator, High Ceilings, Open Floorplan, Tray Ceiling(s), Walk-In Closet(s) |
| LOT | 5227 sq ft |
| LOT DESCRIPTION | Cleared, Cul-de-sac, Landscaped, Paved, Private |
| PARKING | Attached |
| SEWER | Public Sewer |
| STORIES | Split/Multi Level |
| SUBDIVISION | CAMPALTO |
| UTILITIES | Cable Available, Natural Gas Available, Cable Connected, Electricity Connected, Natural Gas Connected, Sewer Connected, Underground Utilities, Water Connected |
| WATER | Public |
MORTGAGE CALCULATOR
TOTAL MONTHLY PAYMENT
0
P
I
*Estimate only
| SATELLITE VIEW |
| / | |
We respect your online privacy and will never spam you. By submitting this form with your telephone number
you are consenting for Greg
Lord to contact you even if your name is on a Federal or State
"Do not call List".
Listing provided by Laurie Ann Truluck, NEXT GENERATION REALTY OF MARION COUNTY LLC, 352-342-9730
The information contained herein has been provided by My Florida Regional MLS DBA Stellar MLS. IDX information is provided exclusively for consumers' personal, non-commercial use, that it may not be used for any purpose other than to identify prospective properties consumers may be interested in purchasing, and that the data is deemed reliable but is not guaranteed accurate by the MLS. Listings last updated 4/3/26 3:00 PM PDT.
This IDX solution is (c) Diverse Solutions 2026.