|
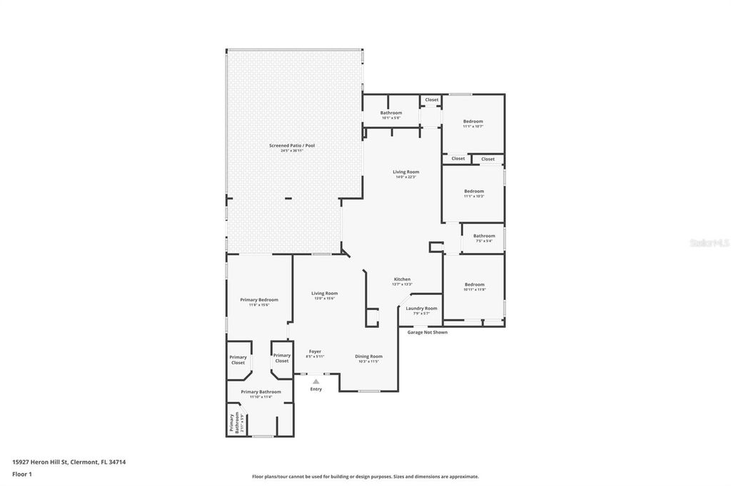
Under contract-accepting backup offers. Welcome to this MOVE-IN READY Florida POOL HOME located in the highly sought-after and established Orange Tree community of Clermont, one of Central Florida's fastest-growing areas known for its proximity to major attractions, shopping, and outdoor recreation. With thoughtful upgrades including a NEW ROOF (2023), POOL HEATER (2025), upgraded electrical wiring with surge protection, and multiple interior improvements, this well-maintained residence offers comfort, functionality, and easy Florida living in a highly sought-after floor plan. As you arrive, mature landscaping and a welcoming entry set the tone for the home with fresh paint (2026) outside and in. Step through the front door into a bright and open layout where natural light, high ceilings, and durable flooring create an inviting atmosphere. The main living space flows easily into the kitchen and dining areas, making the home ideal for everyday living and gatherings. The kitchen is positioned at the center of the home and features granite countertops, newer appliances including brand new dishwasher and range, along with generous cabinetry and workspace. The layout opens to the living area so the cook remains connected to family and guests. The split-bedroom floor plan provides privacy and flexibility. The spacious primary suite offers a relaxing retreat with large windows, ample closet space, and an ensuite bathroom with dual vanities, soaking tub, and separate shower. Additional bedrooms are comfortably sized and can serve as guest rooms, home offices, or hobby spaces. Step outside to enjoy the screen-enclosed PRIVATE POOL and patio area, designed for year-round Florida living. Whether relaxing after a long day or hosting weekend gatherings, this outdoor space offers both privacy and convenience. The new pool heater (2025) enhances the experience by extending swimming season throughout the year. A generously sized attic with a retractable ladder provides convenient access and additional storage space for seasonal items and household organization. Additional features include dimmer lighting controls, one-touch blinds, and a wired security system. The water softener is currently disconnected but available for reconnection if desired. Located within the Orange Tree neighborhood, residents enjoy a convenient Clermont location just minutes from US-27, shopping, restaurants, and everyday conveniences. The property is also within easy reach of Walt Disney World, Orlando attractions, and the expanding Central Florida growth corridor, making it an appealing option for Orlando relocation buyers, primary residents, or those exploring nearby investment opportunities. Clermont continues to attract attention as one of the most desirable areas in Central Florida real estate, offering a balance of outdoor recreation, new development, and accessibility to major employment centers. Home includes a binder with manuals and guides for all installations over the last 6 years. This home is expected to go Quickly! Contact us today for a private tour or more details on this exceptional opportunity.
| DAYS ON MARKET | 11 | LAST UPDATED | 3/31/2026 |
|---|---|---|---|
| TRACT | ORANGE TREE PH 04 LT 401 BEING IN 15-24-2 | YEAR BUILT | 2004 |
| COMMUNITY | 34714 - Clermont | GARAGE SPACES | 2.0 |
| COUNTY | Lake | STATUS | Pending |
| PROPERTY TYPE(S) | Single Family |
| Elementary School | Sawgrass bay Elementary |
|---|---|
| Jr. High School | Windy Hill Middle |
| High School | East Ridge High |
| ADDITIONAL DETAILS | |
| AIR | Central Air |
|---|---|
| AIR CONDITIONING | Yes |
| APPLIANCES | Dishwasher, Disposal, Dryer, Microwave, Range, Refrigerator, Washer |
| AREA | 34714 - Clermont |
| CONSTRUCTION | Block, Stucco |
| EXTERIOR | Other |
| GARAGE | Yes |
| HEAT | Natural Gas |
| HOA DUES | 700.93 |
| INTERIOR | Other |
| LOT | 9148 sq ft |
| PARKING | Attached |
| POOL | Yes |
| POOL DESCRIPTION | In Ground, Private |
| SEWER | Public Sewer |
| STORIES | 1 |
| SUBDIVISION | ORANGE TREE PH 04 LT 401 BEING IN 15-24-2 |
| TAXES | 4936 |
| UTILITIES | Electricity Available, Natural Gas Available, Water Available |
| WATER | Public |
MORTGAGE CALCULATOR
TOTAL MONTHLY PAYMENT
0
P
I
*Estimate only
| SATELLITE VIEW |
| / | |
We respect your online privacy and will never spam you. By submitting this form with your telephone number
you are consenting for Greg
Lord to contact you even if your name is on a Federal or State
"Do not call List".
Listing provided by Simi Lakhani, KELLER WILLIAMS CLASSIC, 407-292-5400
The information contained herein has been provided by My Florida Regional MLS DBA Stellar MLS. IDX information is provided exclusively for consumers' personal, non-commercial use, that it may not be used for any purpose other than to identify prospective properties consumers may be interested in purchasing, and that the data is deemed reliable but is not guaranteed accurate by the MLS. Listings last updated 4/3/26 10:55 PM PDT.
This IDX solution is (c) Diverse Solutions 2026.