|
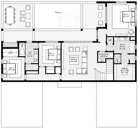
Pre-Construction. To be built. Introducing a premier LAKEFRONT elevated homesite within an exclusive gated luxury community. With expansive views across serene natural landscapes and tranquil water, this homesite truly stands out. Its higher position on the lake provides a rare vantage point, enhancing privacy while capturing sweeping panoramas and the charm of an active orange grove across the water. With approximately 90 feet of direct lake frontage and 90 feet of street frontage, the lot provides a generous and flexible building envelope suitable for a range of architectural expressions. Designed as a refined retreat for elevated everyday living, the proposed 4,990 sq ft Nottingham residence blends architectural presence with warmth, comfort, and intentional design. Thoughtfully composed living spaces, curated materials, and layered natural light create a home that feels both elegant and effortless. The floor plan is intentionally adaptable, offering options for additional bedrooms, expanded garage capacity, and enhanced outdoor living environments while maintaining timeless craftsmanship. The main floor includes the Primary suite, office/bonus room, 2 full baths, living room, kitchen and pantry, dining room, laundry, and a 2-car garage. The lower lakefront level includes 3 additional bedrooms and 2 additional baths, a powder room, and dedicated poolside living, ideal for entertaining or multi-generational living. Situated within Mirror Lake, an intimate gated community of just 21 homesites, residents enjoy an uncommon pairing of lakefront serenity and wide-open golf course vistas from the adjacent Clermont National Golf Course. The setting offers privacy, exclusivity, and a lifestyle defined by natural beauty and architectural distinction. This exceptional lot and custom designed home present a rare opportunity to build a luxury residence in one of Central Florida's most captivating lakefront enclaves, offering privacy, exclusivity, and a thoughtful architectural vision. More than a place to live, Mirror Lake is a retreat for those who appreciate distinction, natural beauty, and a lifestyle designed with intention and differentiation. Close to all things but miles away in Lifestyle, this unique homesite is one of the most captivating sites in Mirror Lake "”offering a timeless setting and an extraordinary canvas for your custom home. Call us to reserve this extraordinary Lot while you meet with MAREA Homes to explore this home design further and take next steps to making Mirror Lake your "Dream Home Come True!" There may be additional design fees from the Builder if the offered Home design is materially changed by  Buyer.
| DAYS ON MARKET | 14 | LAST UPDATED | 3/23/2026 |
|---|---|---|---|
| TRACT | MIRROR LAKE | YEAR BUILT | 2027 |
| COMMUNITY | 34711 - Clermont | GARAGE SPACES | 2.0 |
| COUNTY | Lake | STATUS | Active |
| PROPERTY TYPE(S) | Single Family |
| ADDITIONAL DETAILS | |
| AIR | Central Air |
|---|---|
| AIR CONDITIONING | Yes |
| APPLIANCES | Dishwasher, Microwave, Range, Refrigerator |
| AREA | 34711 - Clermont |
| CONSTRUCTION | Block |
| EXTERIOR | Outdoor Kitchen |
| FIREPLACE | Yes |
| GARAGE | Yes |
| HEAT | Electric |
| HOA DUES | 500 |
| INTERIOR | Eat-in Kitchen, Open Floorplan, Walk-In Closet(s) |
| LOT | 0.3 acre(s) |
| LOT DESCRIPTION | Waterfront |
| PARKING | Attached |
| POOL | Yes |
| POOL DESCRIPTION | In Ground, Private |
| SEWER | Private Sewer |
| STORIES | 2 |
| SUBDIVISION | MIRROR LAKE |
| TAXES | 3002 |
| UTILITIES | Electricity Available, Sewer Available, Water Available |
| VIEW | Yes |
| VIEW DESCRIPTION | Lake, Water |
| WATER | Public |
| WATER ACCESS | MIRROR LAKE |
| WATERFRONT | Yes |
| WATERFRONT DESCRIPTION | Lake Privileges, Lake Front |
MORTGAGE CALCULATOR
TOTAL MONTHLY PAYMENT
0
P
I
*Estimate only
| SATELLITE VIEW |
| / | |
We respect your online privacy and will never spam you. By submitting this form with your telephone number
you are consenting for Greg
Lord to contact you even if your name is on a Federal or State
"Do not call List".
Listing provided by Edward Durruthy, RESOLUTE DEVELOPMENT GROUP, LLC, 407-217-2277
The information contained herein has been provided by My Florida Regional MLS DBA Stellar MLS. IDX information is provided exclusively for consumers' personal, non-commercial use, that it may not be used for any purpose other than to identify prospective properties consumers may be interested in purchasing, and that the data is deemed reliable but is not guaranteed accurate by the MLS. Listings last updated 4/3/26 12:16 AM PDT.
This IDX solution is (c) Diverse Solutions 2026.