|
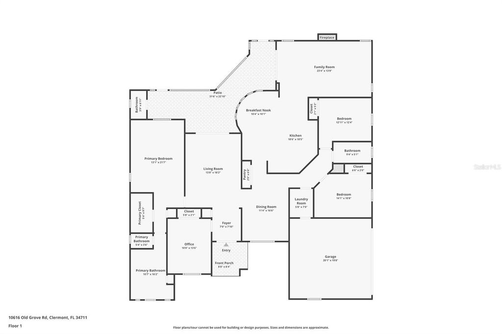
Under contract-accepting backup offers. One or more photo(s) has been virtually staged. No HOA "¢ Nearly 10 Acres "¢ Horse or Livestock Property in Clermont Just 5 miles from HWY 50 in Clermont and Historic Downtown, and very close to Cypress Cove Marina and the Clermont Chain of Lakes. Land is 9.6 Acres total, 6 Acres of Agricultural including the homesite, and 3.5 Acres of Wetlands. Bring your horses, or keep the existing cattle, and enjoy the freedom of country living just minutes from town! This exceptional nearly 10-acre agricultural property in Clermont offers the perfect combination of privacy, usable pasture, and a well maintained custom home. The property features multiple acres of fenced pasture, a horse barn, gated entry, and a long private driveway leading to a side-entry two-car garage. With plenty of room for horses, equipment, and future improvements, this property is ready for your rural lifestyle. Also, a 2 Car Garage and 2 Car Carport. Zoned for Pine Ridge Elementary School. The custom concrete block home offers nearly 2,500 square feet of heated and cooled living space and is move-in ready. Inside, you'll find a desirable split-bedroom floor plan with 4 bedrooms and 2.5 bathrooms, providing comfort and privacy for family and guests alike. A welcoming double-door entry leads into the spacious living area where a stone façade wood-burning fireplace serves as the centerpiece of the great room. The centrally located kitchen features stainless steel appliances and connects easily to the main living spaces"”perfect for everyday living and entertaining. The oversized primary suite offers plenty of space to relax, while the primary bathroom includes a soaking tub, separate shower, and private water closet. Step outside to the 30-foot-wide screened lanai that spans most of the back of the home"”an ideal place to enjoy peaceful mornings or evening sunsets while overlooking open pasture and your own private wetlands behind the property. Opportunities like this are rare in Clermont"”nearly 10 acres, horse-ready pasture, and a move-in-ready custom home with no HOA restrictions. Come experience the space, privacy, and lifestyle this property offers and make it your NextHome today.
| DAYS ON MARKET | 22 | LAST UPDATED | 3/20/2026 |
|---|---|---|---|
| TRACT | NONE | YEAR BUILT | 1995 |
| COMMUNITY | 34711 - Clermont | GARAGE SPACES | 2.0 |
| COUNTY | Lake | STATUS | Pending |
| PROPERTY TYPE(S) | Single Family |
| Elementary School | Pine Ridge Elem |
|---|---|
| Jr. High School | Gray Middle |
| High School | South Lake High |
| ADDITIONAL DETAILS | |
| AIR | Central Air |
|---|---|
| AIR CONDITIONING | Yes |
| APPLIANCES | Dishwasher, Disposal, Electric Water Heater, Microwave, Range, Refrigerator |
| AREA | 34711 - Clermont |
| BARN/EQUESTRIAN | Yes |
| CONSTRUCTION | Block, Stucco |
| FIREPLACE | Yes |
| GARAGE | Yes |
| HEAT | Central |
| LOT | 9.63 acre(s) |
| LOT DESCRIPTION | Cleared, Irregular Lot |
| PARKING | Garage Door Opener, Attached |
| SEWER | Septic Tank |
| STORIES | 1 |
| STYLE | Traditional |
| SUBDIVISION | NONE |
| TAXES | 2841 |
| UTILITIES | Cable Available, Electricity Connected |
| VIEW | Yes |
| VIEW DESCRIPTION | Park/Greenbelt, Trees/Woods |
| WATER | Private, Well |
MORTGAGE CALCULATOR
TOTAL MONTHLY PAYMENT
0
P
I
*Estimate only
| SATELLITE VIEW |
| / | |
We respect your online privacy and will never spam you. By submitting this form with your telephone number
you are consenting for Greg
Lord to contact you even if your name is on a Federal or State
"Do not call List".
Listing provided by Corey Lott, NEXTHOME LOTT PREMIER REALTY, 407-222-0495
The information contained herein has been provided by My Florida Regional MLS DBA Stellar MLS. IDX information is provided exclusively for consumers' personal, non-commercial use, that it may not be used for any purpose other than to identify prospective properties consumers may be interested in purchasing, and that the data is deemed reliable but is not guaranteed accurate by the MLS. Listings last updated 4/3/26 3:02 PM PDT.
This IDX solution is (c) Diverse Solutions 2026.