|
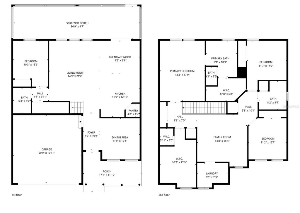
Welcome to 1131 Dora Parc Lane, a beautifully designed two-story home located in the exclusive gated Dora Parc community on the eastern shores of Lake Dora in charming Mount Dora. Built in 2021, this spacious residence offers 5 bedrooms, 3 bathrooms, and over 2,600 square feet of living space, providing the perfect blend of modern comfort and practical design. The thoughtfully designed floor plan features a large open-concept great room and kitchen, ideal for both everyday living and entertaining. The kitchen is equipped with stone countertops, ample cabinetry, and modern appliances, while sliding glass doors bring in abundant natural light and create a seamless flow to the outdoor living space. Upstairs you'll find a spacious primary suite with walk-in closet, along with additional bedrooms and a versatile bonus room that can serve as a media room, office, or playroom. A first-floor bedroom and full bath provide flexibility for guests or multigenerational living. Situated on a corner lot with lake views, this home also features a two-car garage, irrigation system, and inside laundry room. Residents enjoy the privacy of a gated community with only a small number of homes, as well as access to a scenic community catwalk along the canal near Lake Dora. Located just minutes from historic downtown Mount Dora, residents can enjoy renowned restaurants, boutique shopping, waterfront parks, and year-round festivals while still having convenient access to major roadways and the greater Orlando area. Don't miss the opportunity to own a nearly new home in one of Mount Dora's most desirable gated communities.
| DAYS ON MARKET | 29 | LAST UPDATED | 3/20/2026 |
|---|---|---|---|
| TRACT | DORA PARC | YEAR BUILT | 2021 |
| COMMUNITY | 32757 - Mount Dora | GARAGE SPACES | 2.0 |
| COUNTY | Lake | STATUS | Active |
| PROPERTY TYPE(S) | Single Family |
| Elementary School | Triangle Elem |
|---|---|
| Jr. High School | Mount Dora Middle |
| High School | Mount Dora High |
| PRICE HISTORY | |
| Prior to Mar 20, '26 | $489,000 |
|---|---|
| Mar 20, '26 - Today | $479,000 |
| ADDITIONAL DETAILS | |
| AIR | Central Air |
|---|---|
| AIR CONDITIONING | Yes |
| AMENITIES | Maintenance Grounds |
| APPLIANCES | Dishwasher, Disposal, Dryer, Microwave, Range, Refrigerator, Tankless Water Heater, Washer |
| AREA | 32757 - Mount Dora |
| CONSTRUCTION | Block, Stucco |
| EXTERIOR | Rain Gutters |
| GARAGE | Yes |
| HEAT | Central |
| HOA DUES | 310 |
| INTERIOR | Eat-in Kitchen, High Ceilings, Open Floorplan, Smart Home, Stone Counters, Walk-In Closet(s) |
| LOT | 6970 sq ft |
| LOT DESCRIPTION | Cleared, Corner Lot, Landscaped, Paved |
| LOT DIMENSIONS | 120x70 |
| PARKING | Driveway, Garage Door Opener, Attached |
| SEWER | Public Sewer |
| STORIES | 2 |
| STYLE | Traditional |
| SUBDIVISION | DORA PARC |
| TAXES | 6533.93 |
| UTILITIES | Cable Available, Natural Gas Available, Cable Connected, Electricity Connected, Natural Gas Connected, Sewer Connected |
| VIEW | Yes |
| VIEW DESCRIPTION | Lake, Water |
| WATER | Public |
| WATER ACCESS | LAKE DORA |
MORTGAGE CALCULATOR
TOTAL MONTHLY PAYMENT
0
P
I
*Estimate only
| SATELLITE VIEW |
| / | |
We respect your online privacy and will never spam you. By submitting this form with your telephone number
you are consenting for Greg
Lord to contact you even if your name is on a Federal or State
"Do not call List".
Listing provided by Wesley Owen, SIM REI, 352-508-5870
The information contained herein has been provided by My Florida Regional MLS DBA Stellar MLS. IDX information is provided exclusively for consumers' personal, non-commercial use, that it may not be used for any purpose other than to identify prospective properties consumers may be interested in purchasing, and that the data is deemed reliable but is not guaranteed accurate by the MLS. Listings last updated 4/3/26 3:01 PM PDT.
This IDX solution is (c) Diverse Solutions 2026.