|
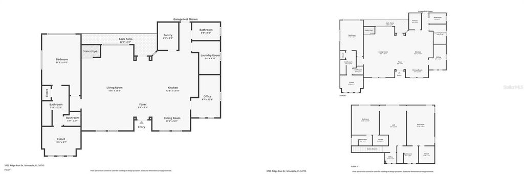
Welcome to your dream home in the gated Sugarloaf Mountain community of Minneola, perched on a high elevation along the Central Florida Ridge where luxury and craftsmanship come together. Built in 2022, this custom Craftsman masterpiece offers over 3,000 square feet of refined living, featuring 3 bedrooms, 3.5 bathrooms, and an impressive 4-car garage"”perfect for buyers who demand both elegance and functionality. From the moment you arrive, the home makes a statement. A lush, landscaped lawn, flagstone walkway, and classic tile rocking-chair front porch lead to a tall custom entry door, setting the tone for the craftsmanship found throughout. Step inside and prepare to be wowed. The main living space showcases soaring ceilings, elegant porcelain tile flooring, and a stunning modern floating wood staircase. A dramatic wall of glass floods the home with natural light while framing peaceful views of the private lanai"”creating the perfect blend of indoor and outdoor living. The chef's kitchen is designed to impress with: "¢ Premium quartz countertops "¢ Custom all-wood cabinetry "¢ Built-in appliances "¢ Stylish granite sink "¢ Oversized walk-in pantry with a barn door accent Just outside, the oversized covered lanai becomes your private resort. Enjoy evenings entertaining with a fully equipped summer kitchen, relax in the 15-jetted high-pressure spa, or gather with friends on the spacious paver patio areas. The primary suite on the main level is a true retreat featuring: -Oversized marble floor shower -Dual vanities -Private water closet -Massive 10x12 walk-in closet with custom built-ins and natural light Also on the main level: a private office, stylish half bath, and upgraded laundry room with sink, quartz counters, and abundant cabinetry. Upstairs, the custom floating staircase leads to a spacious bonus room, two oversized bedrooms with walk-in closets and en-suite baths, plus an office nook. Every upstairs room enjoys spectacular sunrise views of Lake Apopka on the horizon. This home also delivers rare high-end construction features, including: "¢ Dual 20 SEER HVAC systems with HALO air purifiers "¢ Integrated damper system & linear slot diffusers "¢ Spray foam insulation in roof, attic, walls, and garage "¢ Soundproofing for upstairs rooms "¢ Inspired Shade window coverings Location is everything"”and this one is exceptional. Just minutes from: "¢ Montverde Academy "¢ Green Mountain Scenic Overlook "¢ Lake Minneola High School "¢ The Clermont Chain of Lakes "¢ Florida's Turnpike & Orlando attractions Homes with this level of design, efficiency, and mountain-ridge elevation views rarely become available. Luxury. Privacy Craftsmanship. This is more than a home "” it's a lifestyle. Schedule your private showing today and make this custom Sugarloaf Mountain masterpiece your NextHome.
| DAYS ON MARKET | 22 | LAST UPDATED | 3/12/2026 |
|---|---|---|---|
| TRACT | SUGARLOAF MOUNTAIN UNIT 1B | YEAR BUILT | 2022 |
| COMMUNITY | 34715 - Minneola | GARAGE SPACES | 4.0 |
| COUNTY | Lake | STATUS | Active |
| PROPERTY TYPE(S) | Single Family |
| Elementary School | Astatula Elem |
|---|---|
| Jr. High School | East Ridge Middle |
| High School | Lake Minneola High |
| ADDITIONAL DETAILS | |
| AIR | Central Air |
|---|---|
| AIR CONDITIONING | Yes |
| APPLIANCES | Convection Oven, Cooktop, Dishwasher, Disposal, Gas Water Heater, Microwave, Refrigerator |
| AREA | 34715 - Minneola |
| CONSTRUCTION | Brick, Stucco |
| EXTERIOR | Courtyard, Lighting, Outdoor Kitchen, Private Yard, Rain Gutters |
| GARAGE | Yes |
| HEAT | Central |
| HOA DUES | 500 |
| INTERIOR | High Ceilings, Open Floorplan, Stone Counters, Walk-In Closet(s) |
| LOT | 0.31 acre(s) |
| LOT DESCRIPTION | Cleared, Gentle Sloping, Private |
| LOT DIMENSIONS | 80x170 |
| PARKING | Boat, Driveway, Garage Faces Rear, Garage Faces Side, Guest, Oversized, Garage, Workshop in Garage, Attached |
| POOL | Yes |
| POOL DESCRIPTION | Gunite, Heated, In Ground, Private |
| SEWER | Public Sewer |
| STORIES | 2 |
| STYLE | Custom |
| SUBDIVISION | SUGARLOAF MOUNTAIN UNIT 1B |
| TAXES | 5639 |
| UTILITIES | Cable Available, Phone Available, Propane, Sewer Connected, Underground Utilities, Water Connected, Cable Connected, Electricity Connected |
| WATER | Public |
MORTGAGE CALCULATOR
TOTAL MONTHLY PAYMENT
0
P
I
*Estimate only
| SATELLITE VIEW |
| / | |
We respect your online privacy and will never spam you. By submitting this form with your telephone number
you are consenting for Greg
Lord to contact you even if your name is on a Federal or State
"Do not call List".
Listing provided by Corey Lott, NEXTHOME LOTT PREMIER REALTY, 407-222-0495
The information contained herein has been provided by My Florida Regional MLS DBA Stellar MLS. IDX information is provided exclusively for consumers' personal, non-commercial use, that it may not be used for any purpose other than to identify prospective properties consumers may be interested in purchasing, and that the data is deemed reliable but is not guaranteed accurate by the MLS. Listings last updated 4/2/26 8:24 PM PDT.
This IDX solution is (c) Diverse Solutions 2026.