|
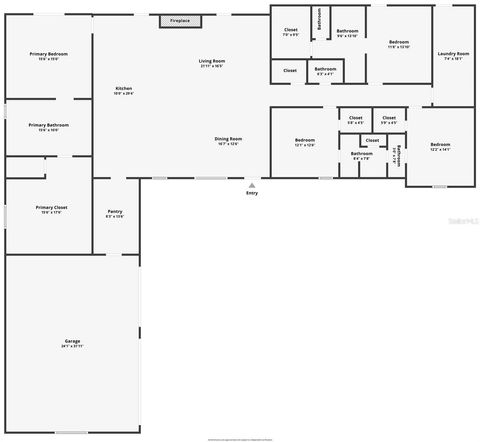
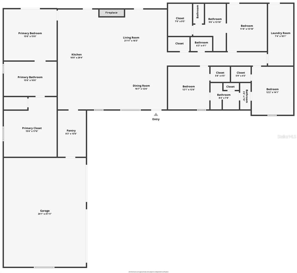
Step into this brand-new 4-bedroom, 3.5-bath farmhouse where timeless charm meets luxury design. Set on over an acre of land, this home offers the peace and space of country living "” without the restrictions of an HOA. Who doesn't want 2 laundry rooms and 2 dishwashers with a 3 car garage. The extras are endless in this new floorpan. Gas fireplace and gas stove with vaulted ceilings just isn't something you will find in most homes. From the moment you pull up, you'll fall in love with the clean farmhouse lines, inviting front porch, and attention to detail that defines BRIJE Homes. Inside, discover an open-concept layout with upgraded finishes throughout "” from the upgrade cabinets and trim work to the elegant flooring. The gourmet kitchen opens to a spacious great room, creating the perfect gathering spot for family and friends. A private owner's suite offers a spa-inspired bathroom and generous walk-in closet, while three additional bedrooms provide space for family, guests, or a home office. Enjoy covered outdoor living with plenty of room to add a pool, workshop, or garden "” the possibilities are endless. Most of yard is fenced and includes a gate to enter the home with paver driveway and turned garage. Highlights: "¢ New construction with upgraded designer finishes "¢ 4 Bedrooms | 3.5 Bathrooms | Open-concept design "¢ Sits on 1+ acre "” room for toys, animals, and future projects "¢ No HOA - freedom to live your way "¢ Built by BRIJE LLC, known for quality and timeless farmhouse style If you've been dreaming of a modern farmhouse lifestyle close to town but surrounded by open space "” this is it. There are site changes made by the builder . Can't verify floorplan and images to be exact as site changes are made.
| DAYS ON MARKET | 172 | LAST UPDATED | 3/23/2026 |
|---|---|---|---|
| TRACT | ROLLING HILLS UN #5 | YEAR BUILT | 2025 |
| COMMUNITY | 34481 - Ocala | GARAGE SPACES | 3.0 |
| COUNTY | Marion | STATUS | Active |
| PROPERTY TYPE(S) | Single Family |
| Elementary School | Dunnellon Elementary School |
|---|---|
| Jr. High School | Dunnellon Middle School |
| High School | Dunnellon High School |
| PRICE HISTORY | |
| Prior to Feb 7, '26 | $800,000 |
|---|---|
| Feb 7, '26 - Mar 5, '26 | $799,000 |
| Mar 5, '26 - Mar 23, '26 | $798,000 |
| Mar 23, '26 - Today | $797,000 |
| ADDITIONAL DETAILS | |
| AIR | Central Air |
|---|---|
| AIR CONDITIONING | Yes |
| APPLIANCES | Cooktop, Dishwasher, Disposal, Microwave, Range |
| AREA | 34481 - Ocala |
| CONSTRUCTION | Block, Cement Siding |
| GARAGE | Yes |
| HEAT | Electric |
| INTERIOR | High Ceilings, Open Floorplan |
| LOT | 1.14 acre(s) |
| LOT DESCRIPTION | Landscaped, Level, Paved, Private |
| LOT DIMENSIONS | 165x300 |
| PARKING | Attached |
| SEWER | Septic Tank |
| STORIES | 1 |
| STYLE | Traditional |
| SUBDIVISION | ROLLING HILLS UN #5 |
| TAXES | 444.45 |
| UTILITIES | Electricity Connected, Water Available |
| VIEW | Yes |
| VIEW DESCRIPTION | Trees/Woods |
| WATER | Private, Well |
MORTGAGE CALCULATOR
TOTAL MONTHLY PAYMENT
0
P
I
*Estimate only
| SATELLITE VIEW |
| / | |
We respect your online privacy and will never spam you. By submitting this form with your telephone number
you are consenting for Greg
Lord to contact you even if your name is on a Federal or State
"Do not call List".
Listing provided by Wendy Fisher, BRIJE REAL ESTATE LLC, 303-597-6699
The information contained herein has been provided by My Florida Regional MLS DBA Stellar MLS. IDX information is provided exclusively for consumers' personal, non-commercial use, that it may not be used for any purpose other than to identify prospective properties consumers may be interested in purchasing, and that the data is deemed reliable but is not guaranteed accurate by the MLS. Listings last updated 4/3/26 7:11 PM PDT.
This IDX solution is (c) Diverse Solutions 2026.