|
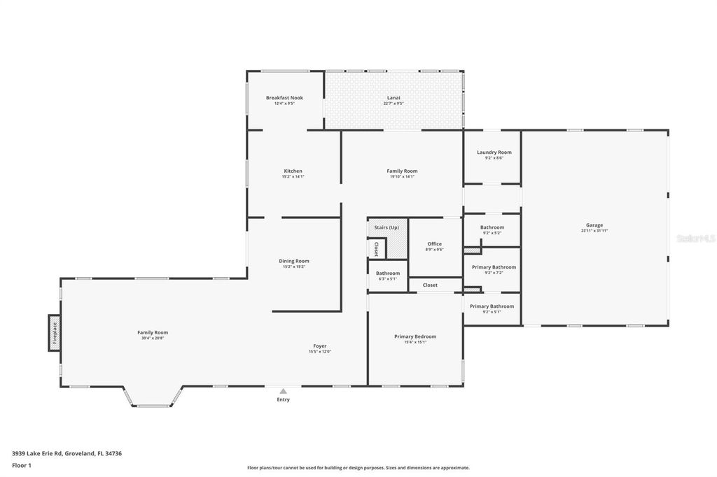
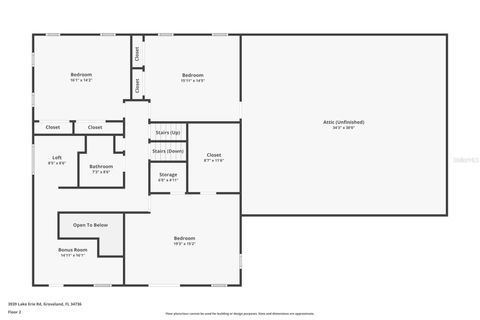
36.8 ACRES OF PRISTINE, WOODED LAND, PRIVACY AT IT BEST and a ONE-OF-A-KIND THREE STORY HOME! Cross between old Florida and Swiss chalet architecture. Clad entirely in old growth pecky cypress and situated among canopying oaks, towering long leaf pines, and stands of old cypress trees, this home was meticulously designed and constructed to blend seamlessly into its natural surroundings. Upon driving up the tree covered driveway, a 72 foot wide front porch welcomes you with plenty of seating space to just relax and enjoy the outdoors. As you walk through the double doors at the entry of the home you are greeted by a large foyer and a living room with a CATHEDRAL CEILING, EXPOSED WOOD BEAMS, a WOOD-BURNING FIREPLACE, and tons of natural light flooding in from windows all the way around allowing the beauty of the private land to be seen from every angle. It's the kind of space where you can watch deer or turkeys pass by at sunrise or listen to the call of owls from the comfort of your sofa. As you continue through the home, you are treated to woodland views from every room. Connected to the breakfast nook and family room is a large, screened back porch providing another perfect place to slow down and unwind while listening to the swaying pines and vibrant birdlife and watching butterflies float by. The home offers two beautiful loft areas perfect for reading or just having a quiet moment to reflect. These loft areas look out to the wooded property as well as overlooking the foyer and beautiful living room. The largest guest bedroom, which could be a secondary primary suite, has a walk-in closet and is pre-plumbed to have its own private bathroom. A large balcony connected to this bedroom and the loft, offer more space to take in the gorgeous landscape and even stargaze in the dark, night sky. You will find an unfinished attic on the second floor that can be accessed through a full size door. This area is great for storage or could easily be finished as additional living space. As you walk up the stairs to the THIRD FLOOR you will walk into another attic space with windows and natural lighting, and this area could also easily be converted into more additional living space. This home has a SECOND HOME ON THE PROPERTY that has power but just needs water hook up and A/C. With solid heart of pine wood floors, this would be a PERFECT ART STUDIO, WORKSHOP or ADDITIONAL COTTAGE DWELLING UNIT. Across the road, OPEN PASTURE ADDS POTENTIAL FOR HORSES. Let your imagination run wild with the ENDLESS OPPORTUNITIES that this property has to offer with even current future land use allowing for one residents per 5 acres of land also allowing additional dwelling unit, barn, stables, etc! GREAT FUTURE POTENTIAL WITH THIS PROPERTY! This home is located in a beautiful, quiet, rural area tucked away from the hustle and bustle yet has easy access to anywhere you want to go! This home is located about a half hour to all shopping in Clermont on Hwy. 50 and one hour to Orlando International and Tampa International Airports. Easy access to the Clermont and Harris Chain of Lakes. Only a couple minutes from the 800 acre Pasture Reserve with miles of hiking trails. Just about 30 minutes to Colt Creek State Park, Lake Louisa State Park, Green Swamp East Tract and just about one hour to Ocala National Forest. Don't wait to come see this beautiful piece of paradise!
| DAYS ON MARKET | 346 | LAST UPDATED | 8/22/2025 |
|---|---|---|---|
| TRACT | GROVELAND FARMS 15-23-24 | YEAR BUILT | 1981 |
| COMMUNITY | 34736 - Groveland | GARAGE SPACES | 3.0 |
| COUNTY | Lake | STATUS | Active |
| PROPERTY TYPE(S) | Single Family |
| Elementary School | Pine Ridge Elem |
|---|---|
| Jr. High School | Gray Middle |
| High School | South Lake High |
| PRICE HISTORY | |
| Prior to May 16, '25 | $1,649,000 |
|---|---|
| May 16, '25 - Jun 11, '25 | $1,490,000 |
| Jun 11, '25 - Today | $1,390,000 |
| ADDITIONAL DETAILS | |
| AIR | Central Air |
|---|---|
| AIR CONDITIONING | Yes |
| APPLIANCES | Convection Oven, Cooktop, Dishwasher, Dryer, Electric Water Heater, Exhaust Fan, Range Hood, Refrigerator, Washer |
| AREA | 34736 - Groveland |
| CONSTRUCTION | Other |
| EXTERIOR | Lighting, Storage |
| FIREPLACE | Yes |
| GARAGE | Yes |
| HEAT | Central, Electric |
| INTERIOR | Cathedral Ceiling(s), High Ceilings, Open Floorplan, Vaulted Ceiling(s), Walk-In Closet(s) |
| LOT | 36.83 acre(s) |
| LOT DESCRIPTION | Landscaped, Waterfront, Wooded |
| PARKING | Covered, Driveway, Garage Faces Side, Open, Other, Oversized, Attached |
| SEWER | Septic Tank |
| STORIES | 3+ |
| SUBDIVISION | GROVELAND FARMS 15-23-24 |
| TAXES | 3010.16 |
| UTILITIES | Cable Available, Electricity Connected, Phone Available |
| VIEW | Yes |
| VIEW DESCRIPTION | Park/Greenbelt, Trees/Woods |
| WATER | Private, Well |
| WATERFRONT | Yes |
| WATERFRONT DESCRIPTION | Pond |
MORTGAGE CALCULATOR
TOTAL MONTHLY PAYMENT
0
P
I
*Estimate only
| SATELLITE VIEW |
| / | |
We respect your online privacy and will never spam you. By submitting this form with your telephone number
you are consenting for Greg
Lord to contact you even if your name is on a Federal or State
"Do not call List".
Listing provided by Lori Gilmore, LORI GILMORE REAL ESTATE LLC, 407-402-2623
The information contained herein has been provided by My Florida Regional MLS DBA Stellar MLS. IDX information is provided exclusively for consumers' personal, non-commercial use, that it may not be used for any purpose other than to identify prospective properties consumers may be interested in purchasing, and that the data is deemed reliable but is not guaranteed accurate by the MLS. Listings last updated 4/3/26 5:06 PM PDT.
This IDX solution is (c) Diverse Solutions 2026.