|
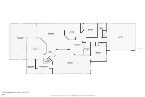
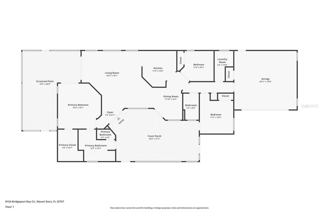
Welcome to refined, low-maintenance living at Lakes of Mount Dora in this beautifully appointed Waterview home located within a desirable 55+ community. Offering 3 bedrooms, 2 bathrooms, and a 2 car garage, this residence was the original model home, showcasing thoughtful builder upgrades and a layout designed for comfort, functionality, and relaxed Florida living. Inside, the home features a bright and open floor plan with spacious living areas that flow effortlessly for both everyday living and entertaining. The kitchen is well-appointed with rich wood cabinetry, custom granite countertops, and stainless-steel appliances, providing both style and practicality. Generous living and dining spaces are enhanced by abundant natural light and serene views of the water beyond. The large primary suite with an impressive en-suite bathroom provides a peaceful retreat, while two additional bedrooms offer comfortable accommodation for guests or family. Practical upgrades include a Whole-house generator adding convenience and peace of mind. Outdoor living is equally impressive. Enjoy a charming screened front courtyard just perfect for morning coffee"”along with a spacious screened lanai overlooking tranquil water views, creating the ideal setting for relaxing evenings or entertaining guests. With its model-home pedigree, thoughtful upgrades, flexible living spaces, and scenic water views, this home offers a rare opportunity to enjoy comfort, elegance, and the best of active adult community living. A standout feature is the expanded, insulated, and air-conditioned 2 car garage/flex space that offers exceptional versatility"”ideal for a home office, hobby room, fitness area, or additional living space tailored to your lifestyle. Roof replacement 4/2025. Located just minutes from Downtown Mount Dora and Eustis. Orlando is just a short drive away via Wekiva Parkway and 429 connectors. Schedule your appointment to tour this exceptional home today. New Price Modification as of March 30th!
| DAYS ON MARKET | 34 | LAST UPDATED | 3/30/2026 |
|---|---|---|---|
| TRACT | LAKES/MOUNT DORA PH 2 | YEAR BUILT | 2012 |
| COMMUNITY | 32757 - Mount Dora | GARAGE SPACES | 2.0 |
| COUNTY | Lake | STATUS | Active |
| PROPERTY TYPE(S) | Single Family |
| PRICE HISTORY | |
| Prior to Mar 9, '26 | $510,000 |
|---|---|
| Mar 9, '26 - Mar 30, '26 | $497,500 |
| Mar 30, '26 - Today | $479,500 |
| ADDITIONAL DETAILS | |
| ADULT COMMUNITY | Yes |
|---|---|
| AIR | Central Air |
| AIR CONDITIONING | Yes |
| AMENITIES | Cable TV |
| APPLIANCES | Dishwasher, Disposal, Dryer, Gas Water Heater, Microwave, Range, Refrigerator, Tankless Water Heater, Washer |
| AREA | 32757 - Mount Dora |
| CONSTRUCTION | Block, Stucco |
| EXTERIOR | Rain Gutters |
| GARAGE | Yes |
| HEAT | Central, Electric |
| HOA DUES | 290 |
| INTERIOR | Cathedral Ceiling(s), Crown Molding, High Ceilings, Open Floorplan, Stone Counters, Tray Ceiling(s), Walk-In Closet(s) |
| LOT | 0.29 acre(s) |
| LOT DESCRIPTION | Waterfront |
| PARKING | Attached |
| SEWER | Public Sewer |
| STORIES | 1 |
| STYLE | Traditional |
| SUBDIVISION | LAKES/MOUNT DORA PH 2 |
| TAXES | 4193.34 |
| UTILITIES | Natural Gas Available, Cable Available, Electricity Connected, Natural Gas Connected, Sewer Connected, Underground Utilities, Water Connected |
| VIEW | Yes |
| VIEW DESCRIPTION | Pond, Water |
| WATER | Public |
| WATERFRONT | Yes |
| WATERFRONT DESCRIPTION | Pond |
MORTGAGE CALCULATOR
TOTAL MONTHLY PAYMENT
0
P
I
*Estimate only
| SATELLITE VIEW |
| / | |
We respect your online privacy and will never spam you. By submitting this form with your telephone number
you are consenting for Greg
Lord to contact you even if your name is on a Federal or State
"Do not call List".
Listing provided by Michele Lowe, DAVE LOWE REALTY, INC., 352-383-7104
The information contained herein has been provided by My Florida Regional MLS DBA Stellar MLS. IDX information is provided exclusively for consumers' personal, non-commercial use, that it may not be used for any purpose other than to identify prospective properties consumers may be interested in purchasing, and that the data is deemed reliable but is not guaranteed accurate by the MLS. Listings last updated 4/3/26 3:01 PM PDT.
This IDX solution is (c) Diverse Solutions 2026.