|
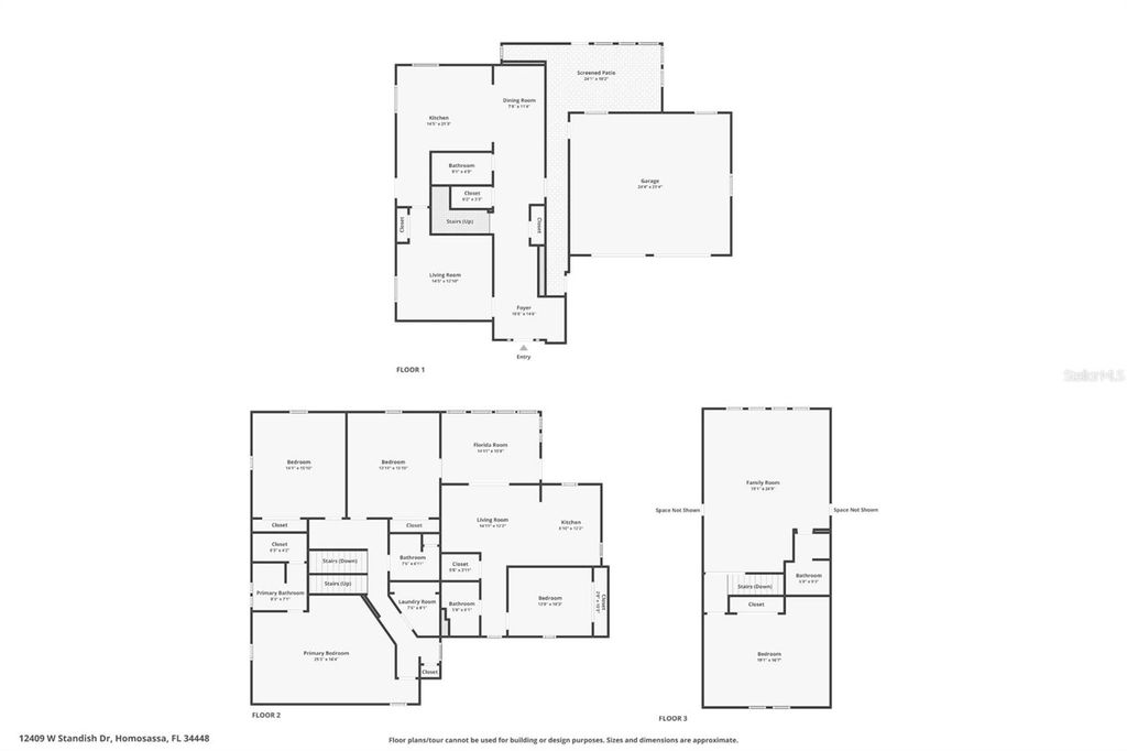
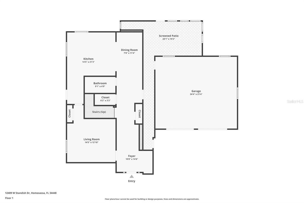
Short Sale. Welcome to this spacious three story home in the heart of Homosassa, offering approximately 3,751 square feet of versatile living space. Built in 1986, the five bedroom, five bathroom property is thoughtfully designed for comfort, functionality, and beautiful views. The second floor features a private mother in law suite with its own entrance, sunroom, full kitchen, bathroom and living area - ideal for multi-generational living or guest accommodations. The third floor boasts a stunning living room with expansive windows overlooking the water, filling the home with natural light and showcasing the surrounding scenery. Located directly across the street from the saltwater, this property includes a one third ownership interest in a nearby boat slip, perfect for enjoying the Homosassa lifestyle. Major updates were completed in 2025, including all new electrical, brand new plumbing, a new AC system, and all new ductwork, offering peace of mind for years to come. Conveniently situated close to downtown Homosassa, dining, shopping, and waterfront attractions, this home offers space, views, and location all in one.
PRE-FORECLOSURE
| DAYS ON MARKET | 44 | LAST UPDATED | 2/19/2026 |
|---|---|---|---|
| TRACT | RESTVIEW RETS UNIT 01 | YEAR BUILT | 1986 |
| COMMUNITY | 34448 - Homosassa | GARAGE SPACES | 2.0 |
| COUNTY | Citrus | STATUS | Active |
| PROPERTY TYPE(S) | Single Family |
| Elementary School | Homosassa Elementary School |
|---|---|
| Jr. High School | Crystal River Middle School |
| High School | Crystal River High School |
| ADDITIONAL DETAILS | |
| AIR | Central Air |
|---|---|
| AIR CONDITIONING | Yes |
| APPLIANCES | Dishwasher, Refrigerator |
| AREA | 34448 - Homosassa |
| CONSTRUCTION | Vinyl Siding |
| GARAGE | Yes |
| HEAT | Central |
| INTERIOR | Eat-in Kitchen |
| LOT | 10019 sq ft |
| LOT DESCRIPTION | Corner Lot |
| LOT DIMENSIONS | 80x76 |
| PARKING | Driveway, Garage Door Opener, Attached |
| SEWER | Septic Tank |
| STORIES | 3+ |
| SUBDIVISION | RESTVIEW RETS UNIT 01 |
| TAXES | 6411.79 |
| UTILITIES | Electricity Connected |
| VIEW | Yes |
| VIEW DESCRIPTION | Water |
| WATER | Private, Well |
MORTGAGE CALCULATOR
TOTAL MONTHLY PAYMENT
0
P
I
*Estimate only
| SATELLITE VIEW |
| / | |
We respect your online privacy and will never spam you. By submitting this form with your telephone number
you are consenting for Greg
Lord to contact you even if your name is on a Federal or State
"Do not call List".
Listing provided by Heather Cogar, SELLSTATE NEXT GENERATION REAL, 352-387-2383
The information contained herein has been provided by My Florida Regional MLS DBA Stellar MLS. IDX information is provided exclusively for consumers' personal, non-commercial use, that it may not be used for any purpose other than to identify prospective properties consumers may be interested in purchasing, and that the data is deemed reliable but is not guaranteed accurate by the MLS. Listings last updated 4/3/26 1:02 PM PDT.
This IDX solution is (c) Diverse Solutions 2026.